
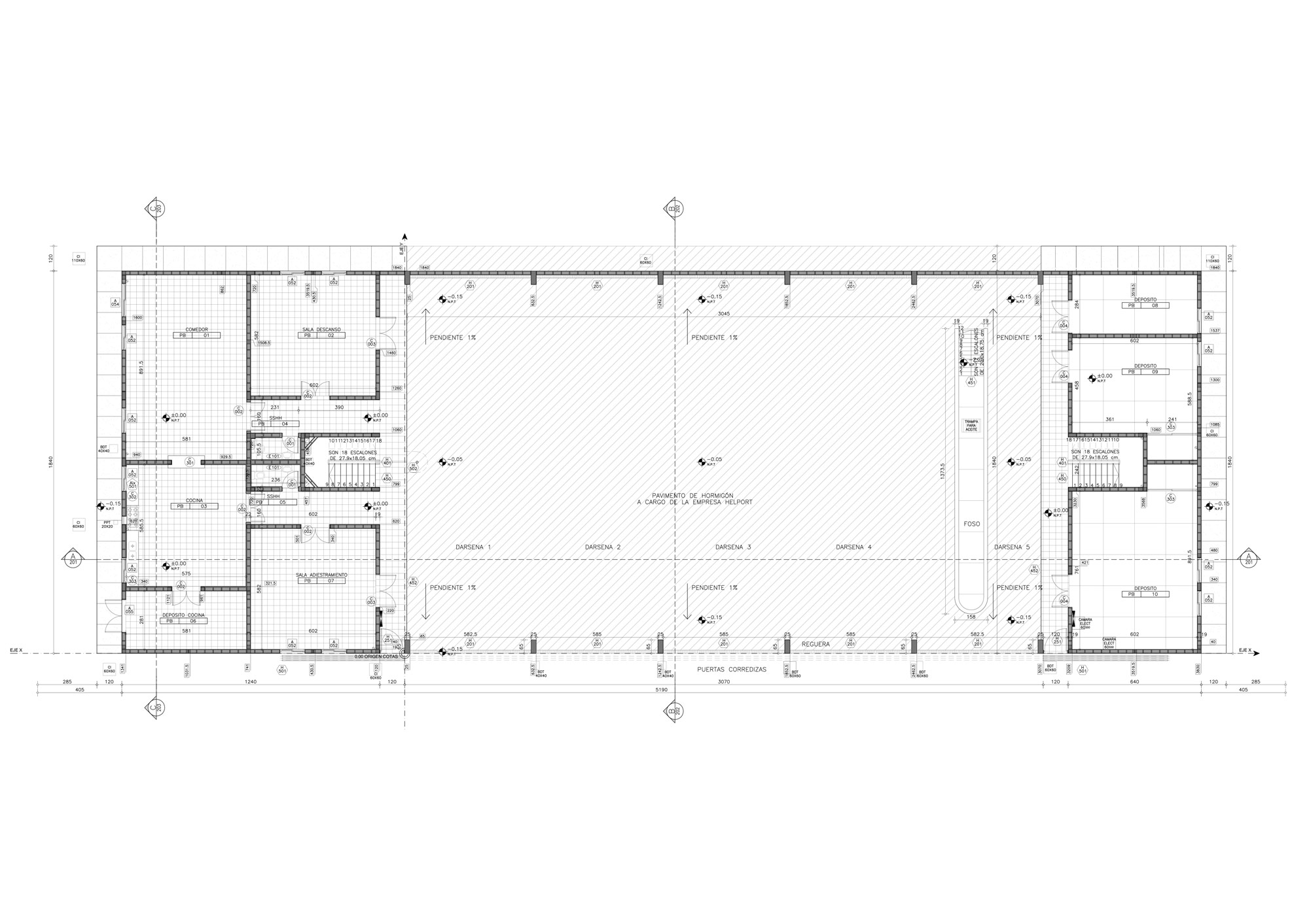
AIC – FIRE STATION
| project | construction | area (m2) | location |
|---|---|---|---|
| 2009-2010 | 2010 | 400 | Uruguay |
Fire Station at the Carrasco International Airport.
Scope of work
Construction documents
Clash detection
Designer architect
Arch. Daniel Ruggiero-Technical Office, Puerta del Sur
Owner
Puerta del Sur





